Tin đăng đã hết hạn.

Bấm tiếp tục xem tin để hiển thị, hoặc tìm kiếm tin đăng tương tự mới nhất dành cho bạn!

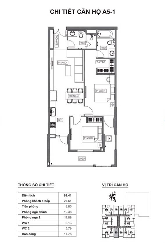
Em cần bán căn Vườn treo 2 ngủ view hồ toà HPC Landmark 105 Tố Hữu

Ngày đăng: 01/05/2025

5
Trung bình
ảnh
ảnh
ảnh
ảnh
ảnh
1/5
ảnh
ảnh
ảnh
ảnh
ảnh
Mô tả tin đăng

Chủ nhà gửi bán căn vườn treo 2N, diện tích 86.4m2 thông thuỷ toà HPC 105 Tố Hữu.
Thiết kế vườn treo bao quanh view hồ cực thoáng đẹp, nhà mới sạch sẽ, full đồ gắn tường.
Sổ đỏ chính chủ!
Giá bán: 4.95 (tỷ).
Lh xem nhà: 0976017458.

Xem thêm

Liên hệ:

097 601 ****
Thông tin chi tiết
Hướng ban công Đông Nam

Vị trí bản đồ

4,95 tỷ

2 PN, 2 WC
86.4 m²
57,29 triệu/m²
Thông tin của bất động sản
Giấy CN QSDĐ - Sổ đỏ - Sổ hồng
Loại BĐS
Căn hộ chung cư
Hướng
Tây Bắc
Địa chỉ
HPC Landmark 105, P. Nguyễn Thanh Bình, P. La Khê, Q. Hà Đông, Tp. Hà Nội
0

0976017458

Môi giới

Tiếp tục xem tin
* Lưu ý: Bài viết Em cần bán căn Vườn treo 2 ngủ view hồ toà HPC Landmark 105 Tố Hữu - là do người đăng tin đăng tải và chịu trách nhiệm. Meeyland.com không đảm bảo và không chịu trách nhiệm về bất kỳ thông tin, nội dung nào liên quan tới tin rao này. Trường hợp phát hiện nội dung tin đăng không chính xác, Quý vị hãy thông báo và cung cấp thông tin cho Ban quản trị Meeyland.com theo số Hotline 0869092929 để được hỗ trợ nhanh chóng và kịp thời nhất.